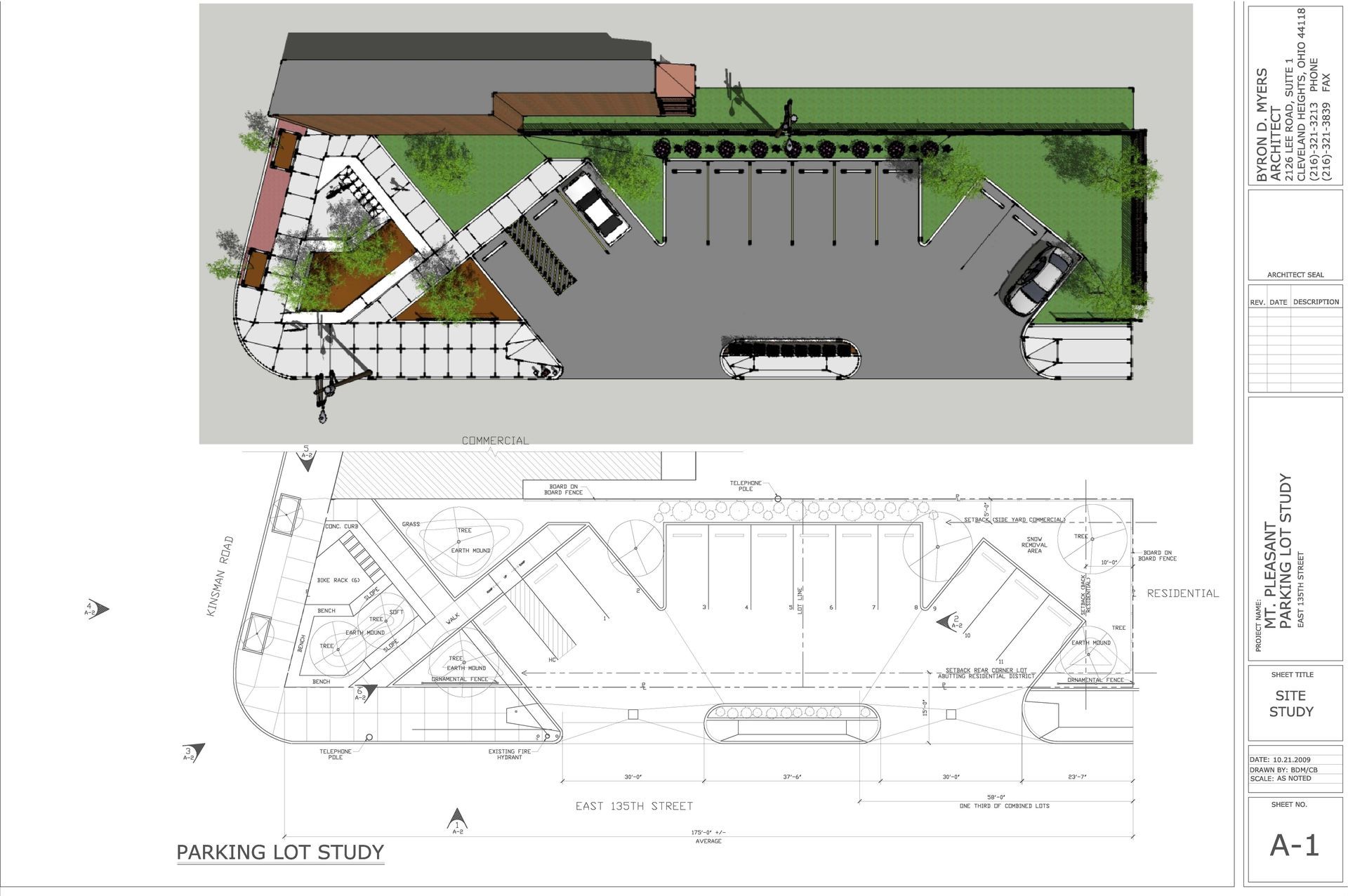
EAST 135TH & KINSMAN RD
Mt. Pleasant , Cleveland Ohio

PROJECT DETAILS


Parking lot concept for a corner lot located in the business district.
Older neighborhoods need off street parking for newly developed businesses. When older buildings in disrepair are demolished, they leave void spaces. This parking lot acts as a filler and connector to the businesses. Parking for vehicles, bike racks for cyclist, seating for public transportation and a green space provide a highly visible and secure space.
